Property Description
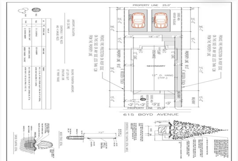
If you are considering getting into Infill builds or if you are a seasoned developer, this is the property you have been waiting for! No building to tear down! Its ready to go! All Permits and Plans, Lot grade and Service for a Duplex in place! Good mid block location,West of Mcgregor Street! All Plans and Permits simply need to be transferred to the new builder! Super affordable and easy peasy! Wow!
Features
No
No
No
No
Address Map
Boyd
615
R2W 1R2
0
W98° 51' 17.2''
N49° 55' 22.3''
: Winnipeg
: North Side Of The Street -west Of Mcgregor
: North End
: Avenue
MLS Addon
: Vacant Land
Residential For Sale
615 Boyd
0 Bedrooms
0 Bathrooms
0 Sqft
$75,000
Basic Details
Property Type : Residential
Listing Type : For Sale
Price : $75,000
Bedrooms : 0
Bathrooms : 0
Half Bathrooms : 0
Square Footage : 0 Sqft
Year Built : 1900
Lot Area : 0 Acre
Status : Active
Days On Market : 0
Agent info
RE/MAX Performance Realty
942 St. Mary's Road, Winnipeg, Manitoba, R2M 3R5
- Terry Isaryk
- View website
- 204-255-4204
- 204-999-7653
-
sold@terryisaryk.com
Mortgage Calculator
Contact Agent
